No. A-293  
本資料卡為內部文件,非廣告,最後
租賃情況及條件,以租約所載為準。
 GBRE全球國際物業
 [グローバル不動產]
TEL (02)7729-6888 FAX (02)2503-0099
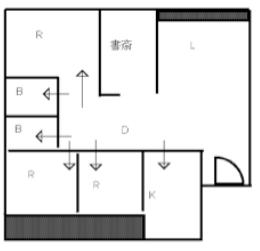
▲ E(入口)=entrance BR (洋室)=Bedroom BA (浴室)=Bathroom
BC (ベランダ)=Balcony JR (和室)=Japaneseroom K (台所)=Kitchen
S (物入)=Storage WIC (ウォークインクローゼット)=WalkInCloset
中山區   Area
Zhong Shan
朱崙街    住所 Address
Chu Lun St Rd.,   
3  LDK 49.9 坪Ping (共有部込) 166 築(Built in) 2015
家 賃  Rent 保證金 Deposit
個人契約
Individual Contract

NT$ 61000
会社契約
Company Contract

NT$ 70000
2  ヶ月分MonthlyRent
共益費 Management Fee
約NT$ 6403    1 月
階数
Storey
警備人
Security
管理人
Doorman
プール
SwimPool/Gym
エレベーター
Elevator
Floor
3/11F . 24H X X/O
木質地板、拋光石英磚
洋室
Bed Room
和室
Japan Room
納戸
StockRoom
書斎
Work Room
浴室
Bath Room
駐車場
CarPark
3
X
X
X
2
X
家具設備 (Furniture)
応接セットSofa
食卓セットDining Set
カーテン Drapery
タンスWardrobe(   )
ドレッサーDressing Table
下駄箱 Shoe Cabinet
ベッド Bed  ・シングル-S(    ) ダブル-D(   )
机Desk
家電設備(Electronics)
テレビTV(    )
洗濯機 Washing Machine
クーラーAir-con(    )
冷蔵庫 Frige
乾燥機 Clothes Dryer
電子レンジ Micro Wave
DVD Player
エアコン Central Air-con
ウォシュレット Washlet
其の他
(Other)
流し台 Sink
ガスコンロ台 Gas Stove
IHコンロ IH Range
浴槽 Bathtub
食洗器 Dish Washer
電話 Telephone(    )
環境 Remark

 

 

交涉日: 2017/06/08 復出日: 開發者:

物件經營紀錄 | 第一頁
日期 案內回報 定時回報 對話者 交涉內容 紀錄者

重要說明 1. KEYMAN個性:
2. 房屋狀況
3. 租金:
4. 保證金:               個月OK
特別申明事項:
另有設備: 本地:
戶籍遷入公司登記:

 


建物名稱: 達官苑
地址: 朱崙街54號 3樓之本 .
鄰近點: 近 超市  駅 徒步 分鐘   
捷徑:

委託方式:
付款方式: 租期:
出售想法: 服務費:
使用狀況 現場TEL:
看屋方式(KEY): 管理員TEL:

所有人權 全名:   Mr 稱謂:  
TEL (H)                                 (O)                              
(M)                               (F)                              
住址
Email
服務單位
職稱:
代理人 全名:日星張       Mr  稱謂:
TEL (H)                               (O)                              
(M)                               (F)                              
關係:                房東何在:                委任授權書: (無)No
住址
Email
KEYMAN
     語言:

家具增減: 垃圾: B S: