|
本資料卡為內部文件,非廣告,最後
租賃情況及條件,以租約所載為準。 |
|
|
|
| GBRE全球國際物業 |
| [グローバル不動產] |
| TEL (02)7729-6888 FAX (02)2503-0099 |
|
|
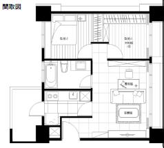
▲ E(入口)=entrance BR (洋室)=Bedroom BA (浴室)=Bathroom
BC (ベランダ)=Balcony JR (和室)=Japaneseroom K (台所)=Kitchen
S (物入)=Storage WIC (ウォークインクローゼット)=WalkInCloset |
|
|
| 中山北路 1 段 住所 Address |
| Zhongshan N. Rd., Sec.1 |
|
|
|
2
LDK
|
28.76 坪Ping (共有部込) 94.9  |
築(Built in) 2011 年 |
|
| 家 賃 Rent |
保證金 Deposit |
個人契約
Individual Contract
|
会社契約
Company Contract
|
2 ヶ月分MonthlyRent |
| 共益費 Management Fee |
| 約NT$ 4,600 每 1 月 |
|
|
|
|
|
|
|
| 6/14F . |
24H |
X |
X/X |
O |
木質地板、拋光石英磚 |
|
|
|
|
|
|
|
| 1 |
1
|
X |
X |
1
|
X |
|
| 家具設備 (Furniture) |
|
| 家電設備(Electronics) |
|
其の他
(Other) |
|
|
|
|
|
|
|