No. D-1001
本資料卡為內部文件,非廣告,最後
租賃情況及條件,以租約所載為準。
GBRE全球國際物業
[グローバル不動產]
TEL (02)7729-6888 FAX (02)2503-0099
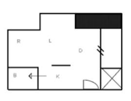
▲ E(入口)=entrance BR (洋室)=Bedroom BA (浴室)=Bathroom
BC (ベランダ)=Balcony JR (和室)=Japaneseroom K (台所)=Kitchen
S (物入)=Storage WIC (ウォークインクローゼット)=WalkInCloset
中山區
Area
Zhong Shan
新生北路 2 段
住所 Address
Xin Sheng N Rd., Sec.2
1 LDK
22
坪Ping (共有部込) 73
築(Built in)
2016
年
家 賃 Rent
保證金 Deposit
個人契約
Individual Contract
NT$
48500
会社契約
Company Contract
NT$
55000
2
ヶ月分MonthlyRent
共益費 Management Fee
約NT$
3300
每
1
月
階数
Storey
警備人
Security
管理人
Doorman
プール
SwimPool/Gym
エレベーター
Elevator
床
Floor
9/12F
.
24H
X
X/X
O
拋光石英磚
洋室
Bed Room
和室
Japan Room
納戸
StockRoom
書斎
Work Room
浴室
Bath Room
駐車場
CarPark
1
X
X
X
1
X
家具設備 (Furniture)
応接セットSofa
食卓セットDining Set
カーテン Drapery
タンスWardrobe( )
ドレッサーDressing Table
下駄箱 Shoe Cabinet
ベッド Bed ・シングル-S( ) ダブル-D( )
机Desk
家電設備(Electronics)
テレビ
TV( )
洗濯機 Washing Machine
クーラーAir-con( )
冷蔵庫 Frige
乾燥機 Clothes Dryer
電子レンジ Micro Wave
DVD Player
エアコン Central Air-con
ウォシュレット Washlet
其の他
(Other)
流し台 Sink
ガスコンロ台 Gas Stove
IHコンロ IH Range
浴槽 Bathtub
食洗器 Dish Washer
電話
Telephone( )
環境 Remark
交涉日: 2019/03/07
復出日:
開發者:
物件經營紀錄
|
第一頁
日期
案內回報
定時回報
對話者
交涉內容
紀錄者
重要說明
1. KEYMAN個性:
2.
房屋狀況
:
3. 租金:
4. 保證金:
個月OK
特別申明事項:
另有設備:
本地:
戶籍遷入
:
公司登記:
建物名稱: 中山凱宴
地址: 新生北路2 段68巷 8號 9樓之?
.
鄰近點: 近 超市 雙連駅
徒步
8 分鐘
捷徑:
委託方式:
付款方式:
租期:
出售想法:
服務費:
使用狀況
:
現場TEL:
看屋方式(KEY):
管理員TEL:
所有人權
全名: Mr 稱謂:
TEL (H) (O)
(M) (F)
住址
Email
服務單位
職稱:
代理人
全名:日星張 Mr 稱謂:
TEL (H) (O)
(M) (F)
關係: 房東何在: 委任授權書: (無)No
住址
Email
KEYMAN
約
歲
語言:
家具增減:
垃圾:
B S: