No. D-636  
本資料卡為內部文件,非廣告,最後
租賃情況及條件,以租約所載為準。
 GBRE全球國際物業
 [グローバル不動產]
TEL (02)7729-6888 FAX (02)2503-0099
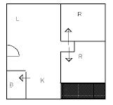
▲ E(入口)=entrance BR (洋室)=Bedroom BA (浴室)=Bathroom
BC (ベランダ)=Balcony JR (和室)=Japaneseroom K (台所)=Kitchen
S (物入)=Storage WIC (ウォークインクローゼット)=WalkInCloset
中山區   Area
Zhong Shan
長安西路    住所 Address
Chang An W. Rd.,   
2  LDK 24 坪Ping (共有部込) 79.2 築(Built in) 2006
家 賃  Rent 保證金 Deposit
個人契約
Individual Contract

NT$ 42,000
会社契約
Company Contract

NT$ 42,000
3  ヶ月分MonthlyRent
共益費 Management Fee
約NT$ 2.610    1 月
階数
Storey
警備人
Security
管理人
Doorman
プール
SwimPool/Gym
エレベーター
Elevator
Floor
14/14F . 24H X X/X
木質地板、拋光石英磚
洋室
Bed Room
和室
Japan Room
納戸
StockRoom
書斎
Work Room
浴室
Bath Room
駐車場
CarPark
2
X
X
X
1
X
家具設備 (Furniture)
応接セットSofa
食卓セットDining Set
カーテン Drapery
タンスWardrobe(   )
ドレッサーDressing Table
下駄箱 Shoe Cabinet
ベッド Bed  ・シングル-S(    ) ダブル-D(   )
机Desk
家電設備(Electronics)
テレビTV(    )
洗濯機 Washing Machine
クーラーAir-con(    )
冷蔵庫 Frige
乾燥機 Clothes Dryer
電子レンジ Micro Wave
DVD Player
エアコン Central Air-con
ウォシュレット Washlet
其の他
(Other)
流し台 Sink
ガスコンロ台 Gas Stove
IHコンロ IH Range
浴槽 Bathtub
食洗器 Dish Washer
電話 Telephone(    )
環境 Remark